Real Estate Rotorua East-Side

powered by Open2view.com

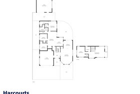
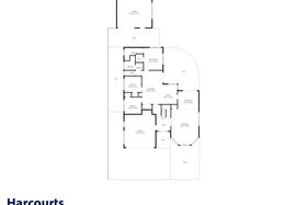
29 Thelma Place

Bay of Plenty
N/A
N/A
N/A
N/Asqm
N/Asqm
29 Thelma Place Bay of Plenty
proudly marketed by
ETB Realty Ltd MREINZ / Harcourts Rotorua Licensed agent REAA 2008
Question
Location
Upload by Deanna Onan
Rotorua